Dom na sprzedaż Wieliszew, Janówek Pierwszy

4 pokoje
100.00 m²
12 500,00 zł/m2
NHL-DS-381
Oblicz ratę kredytu

1 250 000 zł

Dom na sprzedaż
Nowa oferta

Szczegóły oferty

Symbol oferty NHL-DS-381
Powierzchnia 100,00 m²
Powierzchnia działki [m2] 300 m²
Liczba pokoi 4
Rodzaj domu wolnostojący
Technologia budowlana pustak
Standard
Liczba pięter w budynku 1
Okna PCV 3 szyby, ciepły montaż
Kształt działki prostokąt
Pokrycie dachu blacha
Stan budynku do zamieszkania
Rok budowy 2021
Plac zabaw tak
Dojazd asfalt
Otoczenie działki zabudowane
Umeblowanie do uzgodnienia
Alarm tak
Odl. do sklepu [m] 200 m
Drzwi antywłamaniowe tak

Opis nieruchomości

Na sprzedaż wolnostojący dom jednorodzinny o powierzchni 100 m², gotowy do zamieszkania, położony na działce o powierzchni 300 m² w miejscowości Janówek Pierwszy.

Nieruchomość wyróżnia się funkcjonalnym układem oraz starannie zagospodarowaną przestrzenią wokół domu. Ogród z licznymi nasadzeniami zapewnia prywatność i idealne warunki do wypoczynku. Na działce znajduje się również domek narzędziowy.

Parter – komfortowa strefa dzienna:

  • wiatrołap – 8,76 m²

  • przestronny salon z aneksem kuchennym – 34,63 m², z wyjściem na taras oraz kominkiem, który tworzy przytulną atmosferę

  • łazienka z prysznicem – 2,90 m²

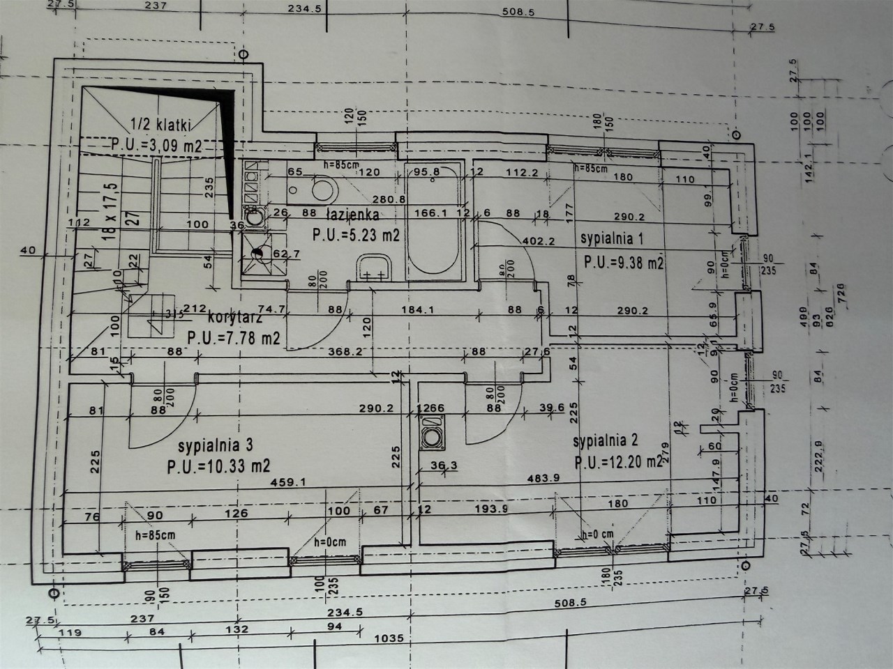
Piętro – część prywatna:

  • łazienka – 5,23 m²

  • trzy sypialnie:

    • 9,38 m²

    • 12,20 m²

    • 10,33 m²

Dodatkowym atutem nieruchomości jest zadaszony taras o powierzchni 40 m², wyposażony w przesuwne ściany, umożliwiający komfortowe korzystanie z przestrzeni przez większą część roku.

Dom jest w pełni uzbrojony w media:

  • prąd

  • ogrzewanie gazowe

  • woda miejska

  • kanalizacja miejska

  • światłowód

Udogodnienia i bezpieczeństwo:

  • moskitiery we wszystkich oknach oraz przesuwne w drzwiach tarasowych

  • instalacja alarmowa

  • drzwi antywłamaniowe

  • system drenażu działki

  • dekoracyjny zbiornik na deszczówkę

Wyposażenie:
W cenie nieruchomości pozostaje pełne wyposażenie kuchni oraz obu łazienek. Pozostałe meble do indywidualnego uzgodnienia.

Lokalizacja:

  • stacja PKP Janówek – ok. 200 m (szybki dojazd do Warszawy)

  • sklep – ok. 500 m

To idealna propozycja dla osób poszukujących komfortowego, w pełni wyposażonego domu, w świetnej lokalizacji, łączącej wygodę komunikacji z kameralnym charakterem okolicy.

Kalkulatory

Kalkulator kredytowy

Wysokość raty

PLN
%

Kalkulator kosztów

Podatek od czynności cywilno-prawnych

Taksa notarialna
(opłata notarialna)

Wniosek o wpis do KW

VAT od prowizji
agencji nieruchomości

VAT od taksy notarialnej
(opłaty notarialnej)

Prowizja agencji nieruchomości

Wypisy aktu notarialnego

Razem

Uwaga: mogą wystąpić dodatkowe opłaty za założenie księgi wieczystej oraz ustanowienie hipoteki.

PLN
PLN
PLN
PLN
PLN
PLN
%
PLN

Proszę wprowadzić poprawne imię i nazwisko
Proszę wprowadzić poprawny numer telefonu
Proszę wprowadzić poprawny adres e-mail
Proszę zaznaczyć wymagane zgody
Rozwiąż równanie:
26 1
Niepoprawny wynik